Fotos Fotos Video Video Vista 360
Datos Volver
Oportunidad

NUEVAS CONDICIONES!! VENDE EXCELENTE CASA A ESTRENAR EN COUNTRY LAGOS DE SAN ELISEO

Location RUTA 58 KM 18,5 - San Vicente

Prev
Prev
Prev
Prev
Venta
Bajó de precio
USD 250.000 Rebaja 4 %
Propiedad

Casas

Ambientes

más de 4 ambientes

Dormitorio

3 dormitorios

Dormitorio

1 dormitorio en suite

Baño

4 baños

Toilette

1 toilette

Credito

Con apto crédito

Credito

Anticipo y cuotas

Superficie

Sup. cubierta 280m2

Superficie Total

Sup. total 962m2

Pisos

2 pisos

Antiguedad

Antigüedad A estrenar

Condicion

Estado Excelente

Codigo Código de propiedad: 5991CA

Datos Acerca de la propiedad

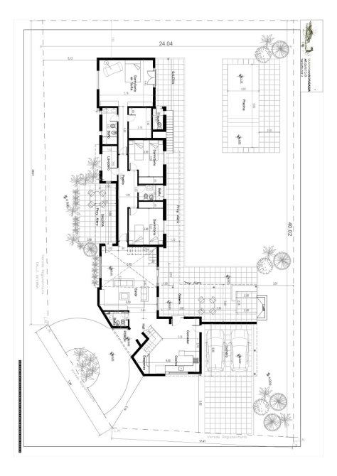
COUNTRY LAGOS DE SAN ELISEO, RUTA PROVINCIAL 58, KM 18,5 SAN VICENTE
LOTE DE 24.04m X 40.02m
280 MTS2 CUBIERTOS Y 105 MTS2 SEMICUBIERTOS
DETALLES DE GRAN CATEGORIA
PORCELLANATO EN TODOS LOS AMBIENTES
ABERTURAS  A30 CON DVH (DOBLE VIDRIO), AMBIENTES MUY LUMINOSOS
LUZ TRISFASICA Y RIEGO POR ASPERCION
CALEFACCION CENTRAL POR RADIADORES
COCINA COMEDOR DE 2,85m X 5,50m CON DESAYUNADOR Y DESPENSA
TOILLETTE DE 2,20m X 1,40m
ESTAR DE 6m X 5m
LIVING DE 6,20m X 5,30m
DORMITORIO DE 3,50m x 3,30m CON PLACARD
BAÑO DE 1,50m X 2,35m
DORMITORIO DE 3,30m x 3,50m CON PLACARD
DORMITORIO EN SUITE CON ACCESO A LA PISCINA DE 5,16m X 4,45m CON VESTIDOR DE 2,18m X 2,90m Y BAÑO DE 3,50m X 2,50
LAVADERO DE 1,42m X 3,40m
GALERIA SEMICUBIERTA EN EL FRENTE DE 5,80m X 3,60m
GARAGE CUBIERTO PARA 2 AUTOS DE 5m X 6m Y LUGAR DESCUBIERTO PARA 2 MAS
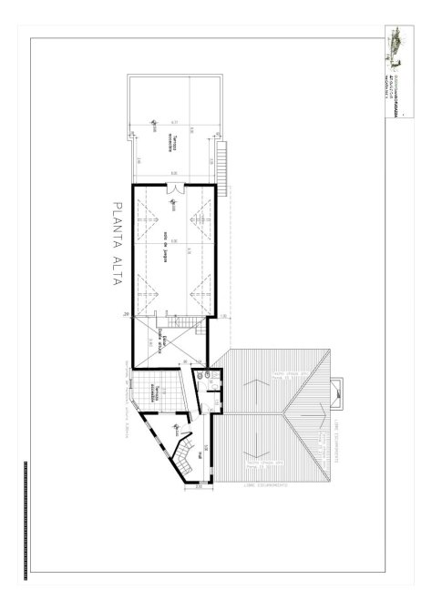
PLANTA ALTA:
TERRAZA DE 8m X 6,77m CON ACCESO A LA PISCINA
SALA DE JUEGOS DE 9,70m X 6m
HOME OFFICE CON BAÑO Y KITCHEN
PISCINA DE 8m X 3m CON VENECITA SOLARIUM Y PLAYA HUMEDA
GALARIA EN EL FONDO CON PARRILLA  Y BARRA TIPO QUINCHO DE 5m X 9 CON VISTA A LA PISCINA
BAÑO EXTERNO DE 2m X 1m
PRE INSTALACIONES DE AIRE ACONDICIONADO EN TODOS LOS AMBIENTES
REVESTIMIENTO EXTERIOR REVEAR Y PIEDRA
FINANCIACION PROPIA DEL 30% EN 12 MESES O PROPIEDAD EQUIVALENTE AL 30 %
 
VALOR: retasada U$S250.000
 


Comodidades Comodidades

Patio

Con patio

Cochera

4 cocheras

Pileta

Con pileta

Jardin

Con jardín

Con parrilla

Mascotas

Acepta mascotas

Ver más vermas

Datos Ubicación

Venta
Bajó de precio

USD 250.000 Rebaja 4 %

Datos Propiedades Relacionadas

Contacto

¿Te interesa esta propiedad?
Contactate ahora

Ver
Chatea con nosotros
Whatsapp